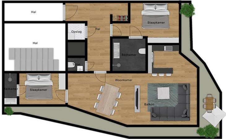
Appartement Pharos Sea Pearl Panorama is een comfortabel appartement voor maximaal 4 personen bij Dormio Breskens Apartments & Penthouses. Het appartement bevindt zich in het bovenste gedeelte van het appartementencomplex (verdieping 6 tot en met 10) en is via zowel de trap als de lift bereikbaar. Het appartement heeft een gebruiksoppervlakte van circa 102 m2. Dankzij de hoekligging heb je een panoramisch uitzicht op onder andere de Westerschelde en de Noordzee.
De woonkamer is modern ingericht en beschikt over een smart-tv met streaming mogelijkheid. Daarnaast is er een gezellige eethoek en een open keuken die van alle gemakken is voorzien, waaronder een koel-vriescombinatie, combi-oven, Nespresso apparaat en vaatwasser.
Vanuit de woonkamer bereik je het balkon dat doorloopt tot aan de zijkant van het appartement. Zo kun je altijd een heerlijk plekje vinden om het mooie uitzicht op de Westerschelde, de Noordzee en de haven van Breskens te bewonderen. Genieten gegarandeerd!
Verder zijn er 2 slaapkamers met elk een 2-persoonsbed en een eigen en-suite badkamer. Eén en-suite badkamer heeft een inloopdouche, dubbele wastafel en toilet. De andere en-suite badkamer beschikt over een douche en wastafel. Ook is er een separaat toilet aanwezig.
In het appartement bevindt zich een opbergruimte met een was-droogcombinatie. Uiteraard kun je gratis gebruikmaken van wifi tijdens je verblijf. Daarnaast kun je één auto gratis parkeren in de ondergrondse parkeergarage (maximale doorrijhoogte: 2.00 meter), waar je ook een algemene, afsluitbare fietsenstalling vindt voor je (elektrische) fiets.
Een aantal appartementen beschikt over een extra parkeerplaats of een privé laadpaal voor je elektrische auto. Wil je een accommodatie met extra voorzieningen of een specifieke ligging als voorkeur opgeven? Neem dan telefonisch contact op met ons Contact Center. Voor het plaatsen van een voorkeursboeking geldt mogelijk een toeslag.
De indeling van de accommodatie kan afwijken. De plattegronden en beelden geven een goede impressie, maar zijn slechts ter illustratie.
Soortgelijke vakantieverblijven
Droomverblijf nog niet gevonden? Wij gaan voor je op zoek!
Ben je jouw ideale vakantieverblijf nog niet tegengekomen? Niet getreurd! Onze Leisure Time Agents gaan graag voor je op zoek naar dat ene verblijf dat voldoet aan al je wensen! Zo kun jij gewoon achteroverleunen en genieten van je leisure time!
Nu aanvragen